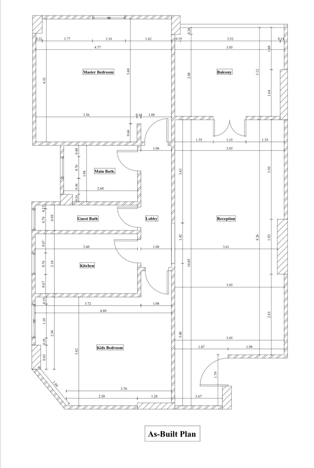
شقة وبدروم بعمارات المستثمرين تقع فى المستثمر الصغير فى قطاع الاندلس شرق التجمع الخامس المساحة 145م شقة – البدروم 150م الشقه مقسمه الى 2 نوم – 2 حمام – مطبخ – رسيبشن – بلكونة البدروم قطعة من الارض تحت الشقه غير مقسمه لمزيد من التفاصيل برجاء الضغط على الرابط
المنطقة :
المستثمر الصغير بالاندلس كود 007
المساحة :
المساحة 145م شقة – البدروم 150م متر
تواصل مع أحد وكلائنا
لمزيد من المعلومات و التفاصيل يرجى التواصل معنا من خلال إرسال رسالة أو إجراء محادثة